Sunninghill Drive Reconstruction, Port Dover
Consultation has concluded
Project: Sunninghill Drive Reconstruction, Port Dover, EIS-ENG-22-35
Construction Dates: April 2022 – November 2022
Location: Port Dover, ON
If you have any comments, questions or concerns about the Sunninghill Drive Reconstruction Project, please contact Adam Cave, Project Manager, at (519) 420-8792
This notice is to provide public notification of the pending reconstruction of Sunninghill Drive in Port Dover.
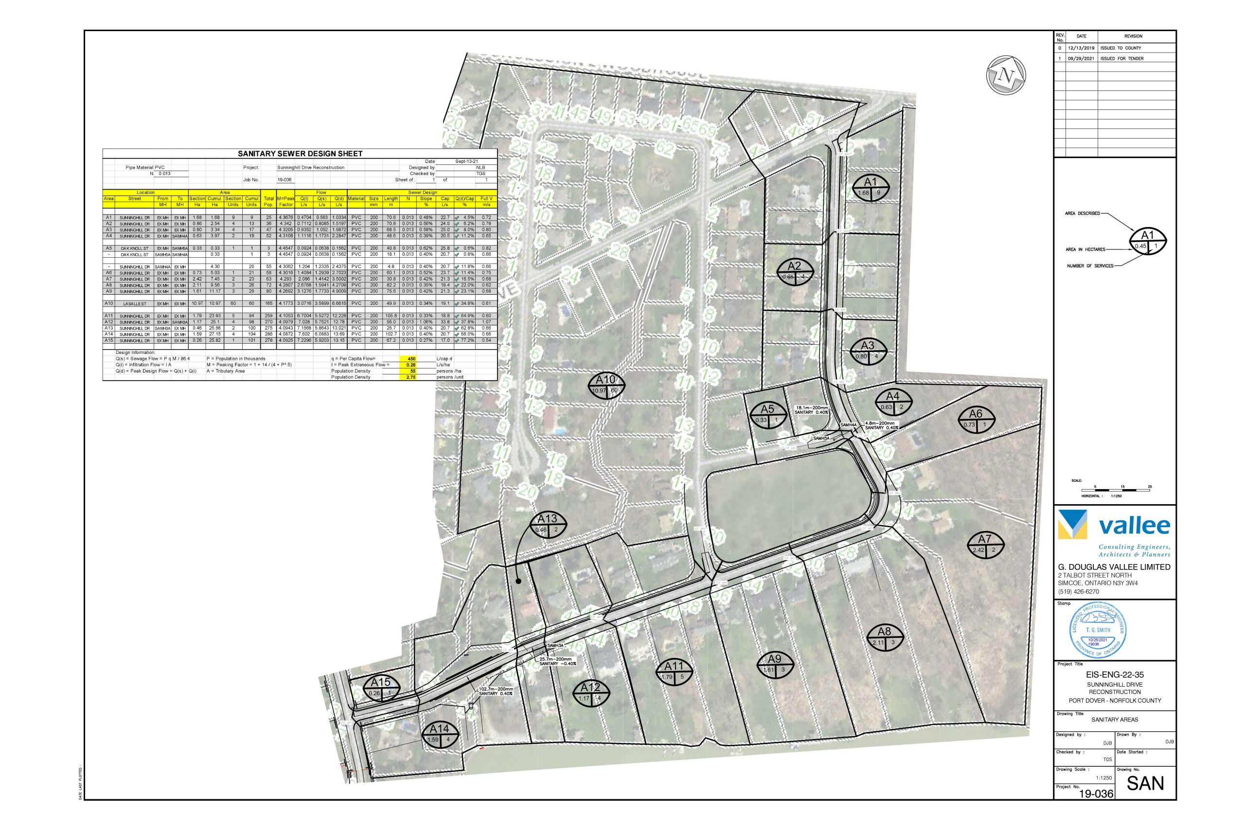
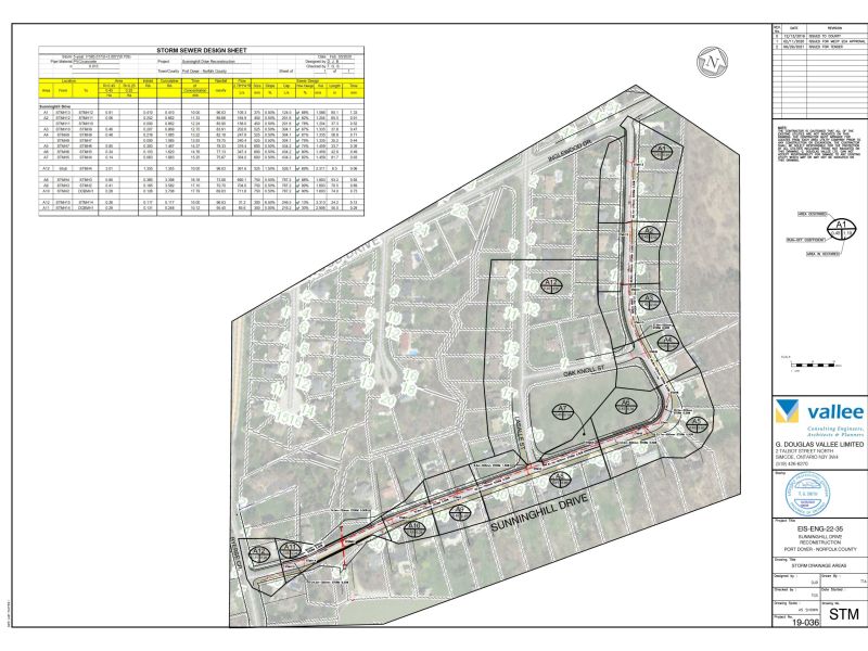
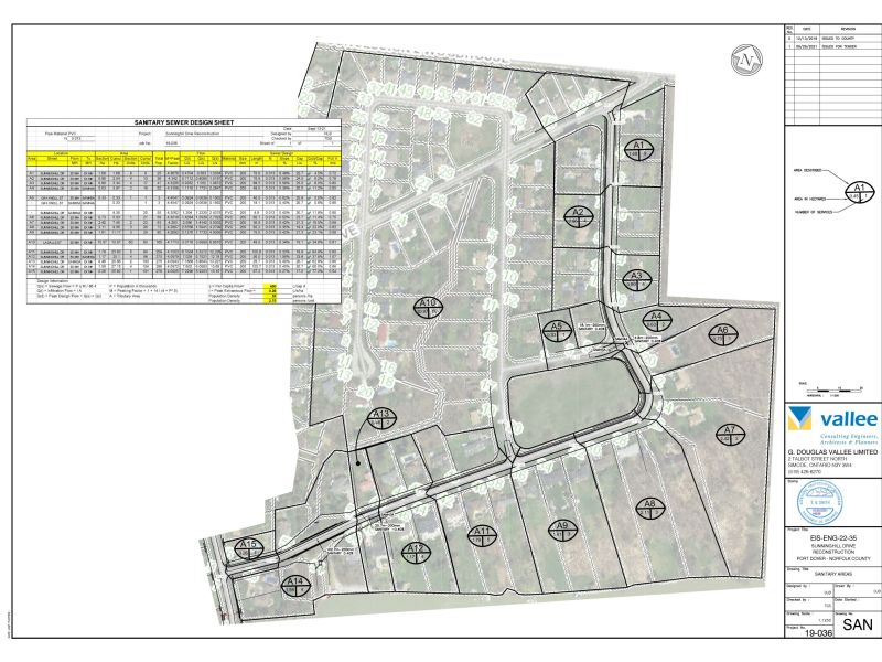
A location map has been provided along with the tender drawings for reference.
COVID-19 Status
Norfolk County has declared that the Sunninghill Drive Reconstruction Project is an essential project. Work is proceeding under this declaration. The contractor will be required to provide a COVID-19 Health and Safety Policy for completing this work under current recommended guidelines. This includes social distancing both with other crew members and the public who may approach the job site. We respectfully request that this social distancing be reciprocated by the public towards the crew members on site.
Notifications will be delivered as required to front doors and interaction will be avoided unless circumstances dictate that verbal notification is required. In those instances, social distancing of at least 2.0m will be maintained
Project Description
Sunninghill Drive – Ryerse Crescent to Inglewood Drive
- Localized repairs of sanitary sewer and services to property line
- Replacement of watermain and services to property line
- Large diameter culvert replacement
- New storm sewer and appurtenances
- New concrete curb and gutter
- New asphalt road surface and granulars
- New sidewalk (Provisional)
Construction Schedule
The construction schedule will be finalized once the pre-construction meeting is held with the contractor. The tentative construction schedule will start April 2022 and continue through to November 2022.
Information for Residents
Driveway Access and On-Street Parking
The contractor is required to maintain access to all homes during construction. There will be occasions when you may experience some delays, lack of service and inconvenience. Every effort will be made by the contractor to minimize these occurrences as well as communicate when they are to occur.
We do ask that you refrain from parking on the street during construction activities as this can delay things and prolong the construction period
Sanitary Sewer Servicing
Localized replacement of the sanitary sewer is being completed as part of this project. In areas where the sanitary sewer is being replaced, sanitary services will be replaced from the main sewer to one metre past your property lines. You should experience no interruptions with your sanitary sewer during the project.
Watermain Servicing
The replacement of the watermain is being completed as part of the project. Your existing water service will be connected at the property line to a new service from the watermain. The contractor and our site inspector will notify you of any interruptions to your water supply that will be required to complete this work.
The contractor will be providing a temporary water system for this project. This system will be installed and tested to the
same standards of Norfolk County as permanent installations. The temporary distribution system will be connected to your existing service. This temporary system will allow for the contractor to complete the project efficiently and safely while maintaining water supply to you.
Any disruption during the connection of your water service to the temporary system or to the new permanent system should be minimal. There may need to be interruptions of longer duration to allow for the main line connections of the new system to the existing system. You will be notified in advance of these interruptions and provided with some indication of the anticipated duration.
Storm Sewer Servicing
A new storm sewer is being completed as part of this project to provide drainage for the new roadway. Storm services to each property will not be provided by this system.
Culvert Replacement
There is a large culvert under Sunninghill Drive just east of Ryerse Crescent. An assessment of this culvert has determined that it is undersized and its condition failing such that the culvert needs replacement. This replacement will take place during the reconstruction of Sunninghill Drive. Due to the depth of the culvert below the road, the replacement construction work will be significant. This will require the road to be fully closed at the limits of the excavation. Non-construction traffic will not be permitted through this localized work are while the culvert is being replaced. Access to properties immediately adjacent to this culvert may be impacted and will be assessed prior to and during construction. If access to your driveway is going to be restricted for an extended period, you will be contacted directly if required.
New Sidewalk (Provisional)
A new sidewalk is being proposed as part of the project on the north and west sides of Sunninghill Drive. As directed by Council, a subsequent notice will follow requiring residents to vote on their preference for sidewalk in accordance with the Norfolk County Sidewalk Policy. Once this process has been completed and data has been sorted, a report will be taken to Council for direction whether to proceed with the sidewalk or not.
Garbage and Recycling
The Contractor is required to maintain the pickup of garbage bags, garbage containers and recycling boxes left at the
curbside from abutting residential or commercial properties within the limits of construction.
This may include the county contractor picking up bags, containers, and recycling boxes and placing them at a convenient location for pick up. If this is required, empty garbage containers and recycling boxes shall be returned to the respective property owners on the same day.
Please clearly mark all containers and recycling boxes with your address so that they may be returned to the correct location. All regularly scheduled garbage and recycling pickups shall be maintained regardless of whether the Contractor is working on that day.
Lawn Sprinkler Systems
We ask that if you have underground lawn sprinkler systems, you please mark the locations of sprinkler heads adjacent the work area.
Tree Removals
With every construction project comes the removal of some trees for various reasons. Some are at the end of their life span, while others have water and sanitary services within the root areas and would be damaged by construction. Trees deemed to present a hazard or conflict with construction activities will be removed as part of this project. Norfolk County will evaluate the potential for appropriate tree planting opportunities after construction is complete.




